PRODU_PLC07  PLACO - detalles constructivos en CAD
 

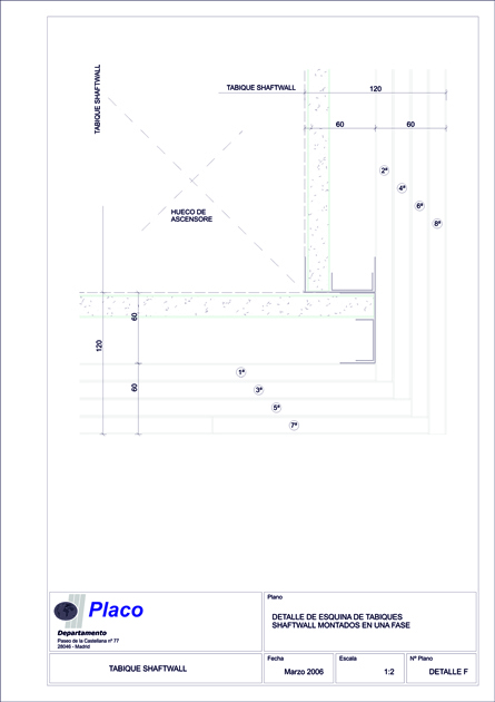
PRODU_PLC074  Shaftwall

Descarga el detalle constructivo en formato DXF




Descarga el detalle constructivo en formato DXF




Descarga el detalle constructivo en formato DXF




Descarga el detalle constructivo en formato DXF




Descarga el detalle constructivo en formato DXF




Descarga el detalle constructivo en formato DXF